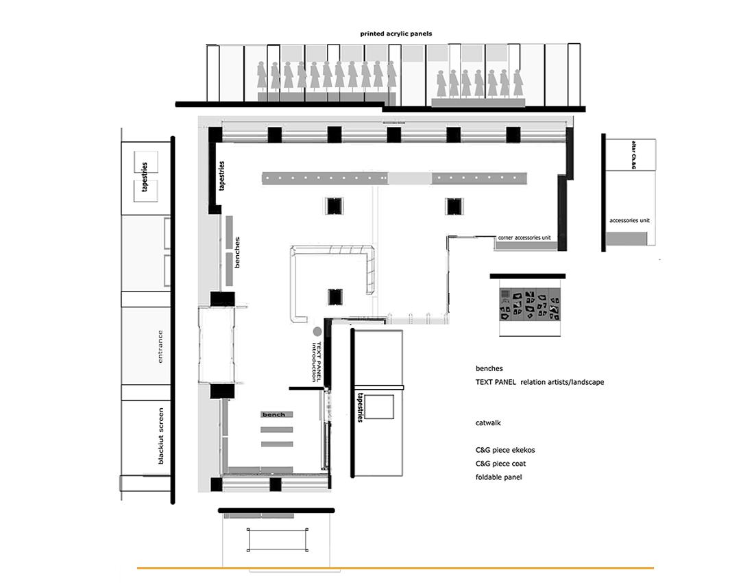
Fashion

2013 International Fashion Show Argentina.

Showroom design commissioned by the British Council and the Argentine Embassy